Sanitärcontainer
Ihr richtiges Produkt

Sanitärcontainer Schwarz-Weiss
Container mieten Preise !

Praktische Raumaufteilung

Besonders geeignet ist unser schwarz-weiß Modul für diejenigen, die im Rahmen ihres Projektes mit verschiedenen Risikostoffen in Kontakt kommen. Sie haben durch die Hygieneschleuse ganz einfach die Möglichkeit belastete Räume von nicht belasteten zu trennen. Zur bereit vorhandenen Ausstattung gehören in diesem Modul zwei Spindräume, eine Toilette und eine Dusche.

Tipp:

Sollten Sie noch weitere Ausstattung benötigen, schauen Sie sich gerne einmal in unserer großen Auswahl an Zusatzausstattungen um. Dort finden Sie viele Ausstattungsobjekte, mit denen Sie Ihren Container komplettieren können. Dies kann sowohl einzeln geschehen als auch im Paket.

Container mieten Preise!

Sanitärcontainer Schwarz-Weiss
Container mieten Preise !

  • 1 Dusche
  • 1 WC
  • 1 Waschbecken
Optionale Zusatzausstattung
zu Sanitärcontainer Schwarz-Weiss
Container mieten Preise !
  • Abwassertank 7-10 m³
  • Brauchwassertank
  • Frischwassertank
  • Stiefelwaschanlage
  • Fäkalienhebeanlage

Produktbeschreibung

Construction Line Schwarz-Weiß Container

Sanitärcontainer Schwarz(rein) – Weiß(raus)

Mit Hygieneschleuse

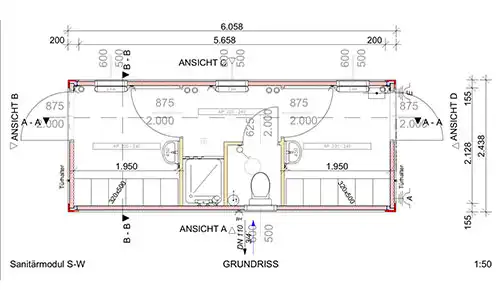
nser Modul schwarz-weiß ist für alle Personen geeignet, die viel Wert auf eine saubere und gut organisierte Baustelle legen. Der Container folgt dem Prinzip „schwarz rein, weiß raus“. Man betritt zuerst den schwarzen Raum in dreckiger Kleidung, legt diese dort ab und gelangt dann durch die Hygieneschleuse in den nächsten Raum, in dem sich eine Dusche und ein WC befinden. Nach der Körperreinigung betritt man einen weiteren Raum, in dem saubere Kleidung wieder angezogen werden kann. Das ist der weiße Raum.

Grundriss

Sanitärcontainer mieten SW Container mieten

Technische Daten

Maße:

Länge: 6.058 mm
Breite: 2.438 mm
Höhe: 2.850 mm

Allgemein:

Strom: 400 V / 32 A
Frischwasser: GEKA-Kupplung
Abwasser: HT-Rohr NW100

Optionale Ausstattung

1 Dusche
1 Toilette
1 Waschbecken
Seifenspender
Papierhandtuchhalter
1 Warmwasser-Speicher 50 Liter
3 Heizungen 2KW

Sanitärcontainer Schwarz-Weiss
Container mieten Preise !

Solo, oder als Zusatzmodul – Container mieten Preise

Selbstverständlich finden Sie bei uns im Sortiment nicht nur einen Sanitärcontainer mit Hygieneschleuse, sondern auch eine große Auswahl an weiteren Containern wie beispielsweise:

  • Lagercontainer
  • Bürocontainer
  • Duo-Anlagen
  • Etc.

Dadurch haben Sie die Möglichkeit unseren Sanitärcontainer schwarz-weiß nicht nur als einzelnes Modul zu erwerben, sondern auch als Teil eines Systems. Dank der flexiblen Modulbauweise unserer Container ist es ganz einfach sie zu einer Anlage zu kombinieren.

Natürlich werden unsere Container vor und nach jedem Gebrauch gründlich gereinigt und desinfiziert. So können Sie sich zu jeder Zeit sicher sein, dass auch Ihr Container den allerhöchsten Hygienestandards entspricht.

 

In nur 60 Sekunden zu Ihrem Angebot

Mit unserem Angebotsgenerator kommen Sie in nur 60 Sekunden ganz schnell und einfach zu einem auf Sie abgestimmten Angebot. Dazu brauchen Sie nur 3 Schritte.

  1. Öffnen Sie den Angebotsgenerator und wählen Sie Ihren Wunschcontainer aus.
  2. Geben Sie Ihren gewünschten Mietzeitraum an.
  3. Nennen Sie uns einen Ansprechpartner und einen Lieferort.

Innerhalb von nur 60 Sekunden erhalten Sie ein für Sie individuelles Preisangebot inklusive Liefer- und Logistikkosten.

Sollten Sie noch Fragen haben oder Ihnen eine persönliche Beratung lieber sein, kontaktieren Sie uns gerne. Wir stehen Ihnen jederzeit telefonisch oder per E-Mail zu Verfügung. Sprechen Sie uns gerne an. Wir freuen uns auf Sie!

 

 

Preiskalkulator - alle Container