Sanitärcontainer
Ihr richtiges Produkt

Sanitärcontainer – Versorger
Sanitärcontainer Preise

Perfekt für Baustellen

Der Construction Line Container ist durch seine Kombination perfekt geeignet für Ihre Baustelle, auf denen verschiedene Arbeitsbereiche zusammenkommen. So können Sie den Container sowohl als Aufenthaltsort als auch für grundlegende Bedürfnisse nutzen. Und das ohne, dass Sie auf ihrer Baustelle Platz verschwenden. Denn durch seinen Aufbau bietet der Container maximalen Komfort auf wenig Raum.

Ergänzende Ausstattung

Um Ihren Container möglichst effizient nutzen zu können, bedarf es möglicherweise noch einigen Extrawünschen. Dies ist selbstverständlich kein Problem, denn mit unserer großen Auswahl an Zusatzausstattungen können Sie den Container noch mehr zu Ihrem eigenen machen. Stöbern Sie gerne einmal durch unser großes Sortiment an Zusatzausstattungen und vervollständigen Sie Ihren Container beispielsweise durch:

Polsterstühle
Spind
Aktenregale
Mülleimer
Etc.
Tipp:

Bei der Auswahl Ihrer Zusatzausstattung haben Sie viele Freiheiten. Sollten Sie sich dennoch nicht entscheiden können, schauen Sie doch gerne mal in unseren voreingestellten Möbelpaketen vorbei. Hier findet sich für jeden Anlass die passende Zusatzausstattung für Ihren Container und das schon im Paket für Sie zusammengestellt.

Sanitärcontainer Preise!

Versorger WC-Damen-Herren Miniküche mit Flur
Container mieten Koblenz

  • Mini-Küche
  • 2 Toiletten
  • 1 Urinal
  • 2 Waschbecken
Optionale Zusatzausstattung
zu Sanitärcontainer – Versorger
Sanitärcontainer Preise
  • Abwassertank 7-10 m³
  • Frischwassertank
  • Fäkalienhebeanlage

Produktbeschreibung

Construction Line Kitchen/WC Kombi

Sanitärcontainer – Versorger mit Toiletten, Urinal, Waschbecken und Miniküche

Mit Toiletten, Urinal, Waschbecken und Miniküche

Mit unserem Construction Line Container haben Sie separate Toilettenräume für Herren und Damen. Diese sind getrennt begehbar und besitzen abschließbare Kabinen. Außerdem beinhaltet er eine Miniküche mit ausreichend Stauraum und einen beheizbaren Flur mit genügend Platz. Der Container kann über drei Türen begangen werden und ist somit flexibel einsetzbar.

Sollten Sie eine Ergänzung benötigen, lässt sich unser Container ganz einfach mit weiteren Containern zu einem System kombinieren. Somit können Sie sich Ihre Containeranlage ganz individuell und abgestimmt auf ihre Anforderungen zusammenstellen.

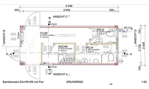
Grundriss

Sanitärcontainer mieten

Technische Daten

Länge: 6.058 mm
Breite: 2.438 mm
Höhe: 2.791 mm
Strom: 400 V / 32 A
Frischwasser: 2 x 3/4” GEKA-Kupplung
Abwasser: 2 x HT-Rohr NW 100

Optionale Ausstattung

Allgemein:

1 Mini-Küche

Damen:

Seifenspender
Papierhandtuchspender
1 Waschbecken
1 Toilette
1 Heizung 2 kW

Herren:

Seifenspender
Papierhandtuchspender
1 Waschbecken
1 Toilette
1 Urinal
1 Heizung 2 kW

Versorger WC-Damen-Herren Miniküche mit Flur
Container mieten Koblenz

Höchste Hygienestandards

Natürlich werden all unsere Container vor und nach dem Gebrauch ausgiebig gereinigt und desinfiziert. Denn Sauberkeit ist für uns höchstes Gebot. Sie haben natürlich auch die Möglichkeit den Container während der Nutzung zu reinigen. Dies ist durch seine hochwertige und robuste Ausstattung zu jeder Zeit problemlos möglich.

 

Ihr Angebot in nur 60 Sekunden

Wenn Sie es schnell und unkompliziert mögen, sind Sie bei uns genau richtig. Denn mit unserem Angebotsgenerator erhalten Sie in nur 60 Sekunden ein individuell auf Sie abgestimmtes Preisangebot für Ihren Wunschcontainer.

Starten Sie jetzt eine Anfrage mit unserem Onlinekalkulator und erhalten Sie in nur 3 Schritten Ihr Angebot per Mail:

  1. Wählen Sie Ihren Wunschcontainer inklusive Zusatzausstattung aus.
  2. Legen sie den von Ihnen gewünschten Mietzeitraum fest.
  3. Geben Sie einen Ansprechpartner und einen Lieferort an.

Innerhalb von nur 60 Sekunden erhalten Sie ein auf Sie zugeschnittenes attraktives Mietangebot, inklusive Logistik.

Starten Sie jetzt

Wir haben Ihr Interesse an einem Container nun geweckt. Dann starten Sie jetzt Ihre Anfrage und überzeugen Sie sich selebst!

Preiskalkulator - alle Container